上川井老人ホーム計画案

敷地は、里山の南斜面の高台に位置し、南および西側に高樹齢の木々がこの敷地の歴史を物語っている。

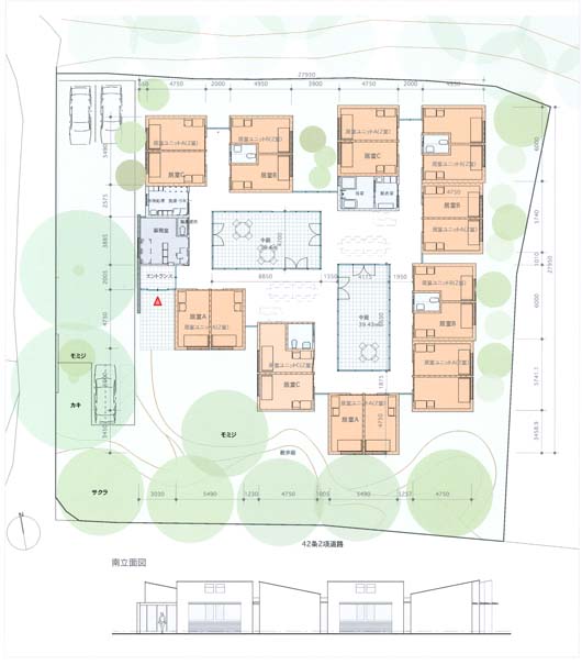
法規制により面積制限(500m2)がかかることと、この樹木に囲われた敷地を最大限生かすため、平屋建て案を提案した。

2つで1ユニットの住戸型の居室を、中庭を取り囲むように配置し、その間を回遊できるよう廊下でつなげることで、開放的なパブリックスペースを創り出した。
廊下の一部をひろげた場所を、リビングスペースとすることで、機能をハイブリット化(複合化)し、面積の効率化を図った。また、見通しが良い空間のため、死角のない安心安全な平面計画を実現した。

中庭は屋内的な使い方を想定し、実面積よりも広く使える勝手の良いスペースである。
住戸ユニットを離して配置することで、パブリックスペースと外周の庭に連続性を持たせ、より広がりのある、自然感のある空間を創り出した

 

 

「この計画は、今村幹建築設計事務所と坂井哲也建築設計事務所とのコラボレーションです。」

 

 

 

 

 

 

 

 

概要/
所在地 ; 神奈川県横浜市
主要用途 ; 有料老人ホーム(住宅型)
構造 ; S造
延べ面積 ;500m2

設計期間 ; 2009年6月(計画案提案)








     
   
リビングスペースの内観パース